Cost of a guest house in Fenton, CA

Adding an accessory dwelling in Fenton? Here’s what it may cost.

A homeowner in Fenton, California, approached New Avenue because she wanted to add a guest house to her property. She planned to use the new space for her children and grandchildren, and she wanted the option of renting it out occasionally.

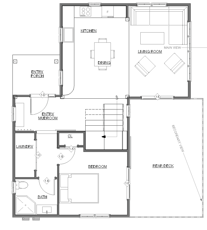
A New Avenue design professional designed a 881-square-foot guest house that takes advantage of the beautiful wooded views and slopes of the property.

Fenton drawings.png
Above: First Floor

Above: First Floor

Above: Second Floor

Above: Second Floor

The cost of this project, including design, permitting, and construction, was $301,635 in 2015.

New Avenue provides a turnkey design/build solution for custom ADUs, guest houses, additions, and remodels. Contact us to schedule your free call with a design/build professional. We’ll answer all your questions and, when you’re ready, introduce the design/build team that’s ideal for your project.

Contact Us
Previous
Previous

Design cost to remodel an accessory dwelling in Alameda

Next
Next

Cost to build a backyard dwelling for retired parents in Oakland