On The Boards

From backyard cottages to ADUs and additions, New Avenue has some exciting projects in the works.

It’s an exciting time for home additions and accessory dwelling units, especially as more people are working from home and looking for extra space. Home ownership is changing, lifestyles are adapting to the times, and we’re thrilled to be a part of finding creative design solutions that help our clients. Here are some recent interesting projects.

An ADU with a loft makes the most of backyard space (with room for outdoor fun!)

A modern form but warm natural materials defines this small ADU tucked into a backyard. The goal was to create a new unit that had some privacy from the main house while preserving some garden space for the families living in each unit. This ADU will be a beautiful place to spend time, inside and out.

The floorplan is designed to be an efficient use of space, making the small sized dwelling feel larger through the use of views out to the garden, open kitchen and living areas, and plenty of storage. There’s room in the ADU for all of life’s activities plus a beautiful outdoor living area to extend the living space to the surrounding garden - a strategy that makes a lot of sense in the mild climate around the San Francisco Bay Area.

ADU-with-loft-1B-1536x676.jpg
ADU-with-loft-1A.jpg

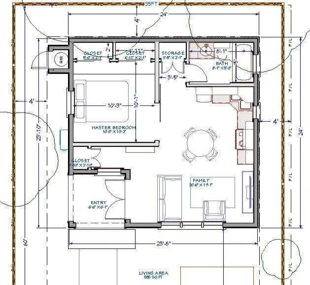
A Berkeley house lift adds 970 square feet - space for a new owner’s suite and accessory dwelling unit.

The owners of this Berkeley home wanted to keep their house, but they needed more room. The solution? Lift the house and build out the space beneath it. The new lower floor added a 410-square-foot addition to the main home with a family room and a bedroom with en-suite bath, and a 560-square-foot ADU that can be rented out or used as a separate living space for visiting family.

The ADU has a full kitchen with dining area, a living room, a bedroom, and a full bathroom, along with ample closet space. It also has a separate entrance. The addition includes an owner’s suite, utility closet, and family room with a staircase leading up to the rest of the home.

This lift plus addition is an excellent solution for someone who wants to double the livable space in their home. It gives the family more space in the main home and adds an accessory dwelling.

House-Lift-with-adu-1A.jpg
House-Lift-with-adu-1B.jpg

This studio ADU in Berkeley provides versatile space inside and an absolutely gorgeous exterior.

This design shows just how much you can do in a few hundred square feet. The floorplan includes a main room with kitchen, room for dining, and a Murphy bed that is a couch during the day but folds down into a comfortable bed at night. It’s the perfect place for a single adult or couple of any age, and it makes a delightful guest house. It also could easily be a home office and place for visiting guests to stay from time to time. The small ADU has a craftsman style to compliment the style of the main house while nicely tucking away into the beautiful backyard garden.

Berkeley-ADU-1B.jpg
Berkeley-ADU-1A.jpg

This ADU in Sonoma has a modern design and makes creative use of a rectangular shape.

These clients asked for a more modern style for an ADU to be built in their backyard. The simple rectangular form is efficient and cost effective which allowed the clients to invest in nicer materials and finishes. The layout includes a flexible main living area with a murphy bed, a storage room, and a bathroom with a double vanity.

Sonoma-ADU-1B.jpg
Sonoma-ADU-1A.jpg

There’s a lot you can do to get more from your home. An addition or an ADU will add usable space to your property, giving you additional income, a place for family to live, or more space for your family to enjoy life. If you’re ready to get more out of your property, contact New Avenue today. We’ll put you in touch with one of our outstanding designers to help you get your project started.

Previous
Previous

Will I have to pay more property taxes if I add an ADU in El Cerrito?

Next
Next

What is the increase in property taxes when building a one-bedroom ADU in Oakland?