Building a two-room workshop with bathroom in Concord

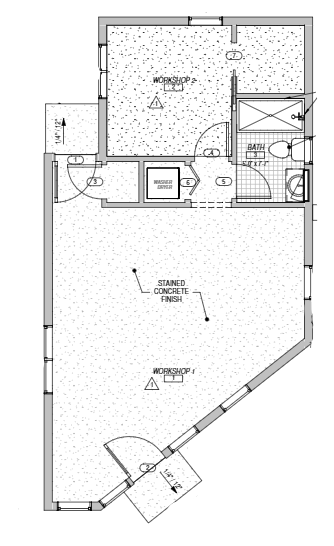
Richard and Vanessa, homeowners in Concord, CA, came to New Avenue for a new detached workshop. They needed a two-room workshop with a bathroom and washer/dryer.

A New Avenue design professional worked with the homeowners to create a space that serves their needs. It will provide a working space with plenty of room for the homeowners’ belongings. The stained concrete floor is attractive, durable, and easy to maintain. Natural light through skylights and windows gives the accessory structure an open feel perfect for work and creativity.

BHelevations.PNG
BHfloorplan.png

How to add a detached workshop or office to your home

Adding a home office or workshop is a smart step in getting more out of your home. To get started, click the button below to contact New Avenue. You can schedule a free call or fill out our online form. We’ll help you get your project started and introduce the right design/build team for you.

Prefer to bring in your own professionals? Bring them in. Our process and technology bring everyone together into one cohesive, communicative team.

Over 12 years of experience have given us the data and expertise we need to provide the most accurate quotes and the most comprehensive service in the industry. When you work with New Avenue, you get everything you need to transform your home: team creation, design, engineering, construction, project administration, permits, and exclusive access to our proprietary app to keep everything on track.

Contact us today for your free call.

Contact Us
Previous
Previous

Looking for an accessory dwelling company in San Francisco? Make sure you choose the best.

Next
Next

Taking on an ADU project on the San Francisco Peninsula? Here’s what to know about the best accessory dwelling builders.