Adding an accessory dwelling to a home in Hollister, CA

The owners of a property in Hollister, CA, came to New Avenue for an accessory dwelling that would coordinate well with their existing home and barn.

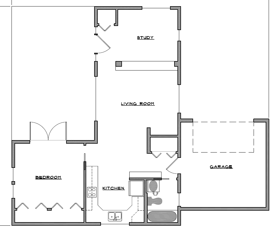
Their New Avenue design professional created a home that would fit in the space and serve the needs of the homeowners. This home includes a study, a living room, a kitchen, a bedroom, a bathroom, and a garage.

hfloorplan.PNG

The owners will be able to use this ADU for themselves, for family, for guests, or as a rental unit, bringing in $2,500 or more per month.

How to build an accessory dwelling (ADU), guest house, backyard cottage, or rental home in Hollister

To get started on your project, contact New Avenue. We’ll answer all your questions in a free call with a design/build professional. When you’re ready to transform your property, we’ll introduce the design/build team that’s perfect for your project. Use our vetted professionals or bring in your own. With the New Avenue system, everyone is part of a cohesive team working toward your goals for your home.

With over 12 years in the industry, we provide the most accurate pricing and the most comprehensive service. Our turnkey design/build process includes team creation, design, engineering, permitting, construction, project administration, and use of our proprietary app—everything you need to get more from your home.

Click below to fill out our online form or schedule your free call.

Contact Us
Previous
Previous

Cost to add an accessory unit or backyard cottage in Livermore, CA

Next
Next

The Design/Build Process That Every ADU Project Follows