They wanted (and got) it all when they modernized their 100-year-old home

This San Francisco family wanted to update their 100-year-old home. Like so many homeowners, they had a lot of goals in mind.

Many of the people who call New Avenue own outdated homes that just don't suit their modern lifestyles.

They wish they could invite their friends over for supper or a glass of wine, but there's just not enough room to entertain.

They know a main bedroom should be a relaxing retreat, but their current bedroom and bathroom layout just makes them feel trapped.

They know that one day, their aging parents will need to move in with them. They want to give their parents the independence and dignity they deserve, but the home just isn't equipped for it.

The homeowners who contact us tend to have one or more of these four goals:

A. Add a new owner’s suite (or convert a bedroom into an owner’s suite)
B. Open up the living area and kitchen for better entertaining
C. Add an in-law apartment for the future
D. Upgrade outdated tech and systems for better climate control, toxin removal, and cleaner living

Many of them opt for something else:

E. All of the above

When "all of the above" seems like too much

When you want to do a lot with your property, "all of the above" may seem like too much to take on. Few of us can afford to do a full-home remodel and addition, plus other wish-list items, all at once.

Even if financing isn't an issue, your goals may be fluid. You may need an a place for the kids to play now and an in-law apartment in ten years. That's exactly what one San Francisco family wanted as part of their "all of the above."

Here's how designer Matt Waitkus helped this young family develop a master plan to achieve all of their goals for their historic home.

A) A new owner’s suite (and more)

The homeowners needed to add a third bedroom, but their property was an official historic home, protected by city rules to preserve the art-deco feel of the Avenues. To preserve the facade, Matt designed a third level for the home that would not alter the street view.

Aelevations-1024x778.png

The left side shows the proposed elevation. The right shows the existing elevation. What the drawings don't show is that from the street, only the first two floors are part of the facade. The third floor is set back, preserving the historic street view.

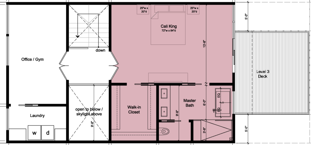
The new third level includes an owner’s suite big enough for a California King bed, washer/dryer connections, a full owner’s bathroom, and a room suitable for an office and/or a home gym. (Why not both?)

Alevel-3-proposedd-1024x479.png

The floor plan for the new third level adds so much space to the home! Now the owners can enjoy a private retreat in their busy home.

B) Improved common areas

The remodel of the second floor opened up the kitchen, living area, and dining area for a more modern flow. Now the family can enjoy a more cohesive lifestyle and a better space for social events.

Blevel-2-existingb-1024x449.png

The floor plan above shows the existing second level.

Alevel-3-proposedd-1024x479.png

Above is the new second level. Note the reconfigured and expanded common areas and the new deck. It's just right for hosting.

C) A rec room now, an in-law apartment in the future

A garage and storage areas comprised the ground level, and Matt turned much of that storage space into a game room large enough for a pool table, a ping-pong table, and a sitting area. Preserving the garage and some storage space, he also added a bathroom and a laundry room. Work on this level was more than just a matter of rearranging the space, however. To maintain a nine-foot ceiling throughout the level, the slab had to be dropped.

Clevel-1-existingb-1024x479.png

The existing first level (floorplan above) consisted of a garage and storage.

Clevel-1-proposedd-1024x388.png

The new first level (floorplan above) retains the garage and adds recreation space, laundry facilities, and a bathroom. This space can easily become an accessory dwelling unit in the future. The owners will be able to rent it out or turn it into an in-law apartment.

In the future, the homeowners will be able to convert the ground level into a full accessory dwelling unit, which can bring in rental income or be a place for relatives to live. For now, it's perfect for leisure time and a place for guests to stay.

D) Upgraded systems for greener, healthier living

The design for this historic home includes new windows for better climate control—windows approved by the city's historic preservation board. The family will also enjoy improved skylights to help with energy efficiency and natural lighting.

Some older homes require removal of toxins such as asbestos or lead. Many homeowners want to add solar panels or improve the building envelope to cut down on energy waste.

E) All of the above: With the right design, you can have it all—now or over time.

Matt's plans bring the interior of this San Francisco home up to date, making it perfect for this growing family now and in the future. The versatile design can become anything the family needs it to be.

At New Avenue, we work with people who want to get the most out of their homes. Most homeowners want Option E, all of the above.

You may want to do it all at once or just start with part of it. Whether you choose to do everything on your wish list right away or spread it out over time, a solid plan is crucial.

We do the research and provide a master plan for your "all of the above." Then, we help you decide how and when to tackle each part of your project. We help you avoid costly mistakes and surprises as you achieve the best version of your home.

Click below to get started on your plan.

Schedule your free call today.
Previous
Previous

Four tips for getting the best estimate

Next
Next

Building in California? There are new requirements for 2020, and solar is one of them.